Gounod Residence : A House in all Verticality

16 Mar 2021

Designed to blend into the urban landscape, the house is spread over four floors on the neighborhood scale, with a combination of rich and contrasting materials that predominate on the building's facade.

Gounod Residence : A House in all Verticality

Designed to blend into the urban landscape, the house is spread over four floors on the neighborhood scale, with a combination of rich and contrasting materials that predominate on the building's facade. 

Concept and Strategies

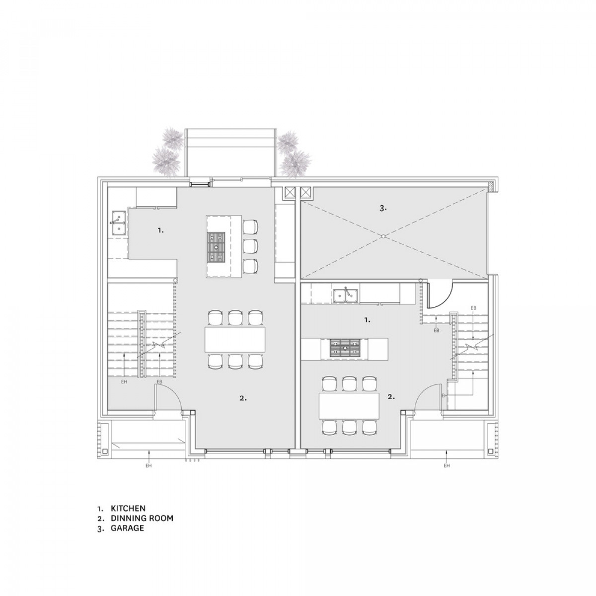
Located on a narrow lot in the Villeray district of Montreal, the new home signed ISSADESIGN offers 2 units of 1845 square feet.  As soon as we enter, we are greeted by the staircase. This vertical element acts as the centerpiece of the house and as a landmark while connecting the various floors. "The idea behind this architectural element was to make a slight nod to the tree in the forest. Inspired by the tree trunk, the staircase is framed with slats and this on the full height. At the very top, the end of the promenade, a skylight illuminates the space and offers interesting plays of light and shadow."

Also Read | GROHE’s retrofit line bets on convenience and experience

Family living areas occupy the first floor. For its part, the basement offers a living area as well as an additional bedroom and a functional laundry room. The children's wing is located on the 2nd level while the upper level is dedicated to the master suite where one has access to a roof terrace, ensuring private outdoor relaxation. A glassed-in bathroom integrated into the bedroom is also a focal point.  

Materiality

The materiality proposed for this co-ownership is intended to be contrasting and elegant. The objective was to play with black and white knowing that these shades are timeless and give character to any place when combined. The herringbone wood flooring adds a dose of warmth and elegance to this house that is just waiting to receive its future inhabitants. 

Also Read | 7 Creative ways to revamp your outdoor space and impress your guests

Gounod Residence : A House in all Verticality
Photo credit: David Boyer
Gounod Residence : A House in all Verticality
Photo credit: David Boyer

Project Specifications

  • Client: Private
  • Location:  Villeray district, Montréal, Qc, Canada 
  • Area: 3685 pi. ca. / 343 m. ca.  
  • Materials used: Italian marble, oiled white oak, quartz, metal.

Project's Team

About ISSADESIGN

ISSADESIGN is an environmental design agency specializing in the fields of institutional, corporative, commercial and residential design. Its areas of expertise include creative consultation, interior planning and design, and architecture.

ISSADESIGN takes to heart its client’s expectations, needs, and desires by creating timeless designs that respect the principles of sustainability. The designers believe they can contribute to a greener society, one step at a time. No matter the size or budget of a project, they integrate simple and inexpensive ecological solutions to their concepts. The team develops a close relationship with their clients by being available and flexible to their needs.

Also Read | 6 Unique ideas to make your dull and dark room look bright

Their respect for their client’s needs and their collaborator’s ideas contributes to the richness of ISSADESIGN's projects. The client is at the heart of the process in each project. The design team submerges into their universe to create and develop the perfect sync between their philosophy and their personality.

Also Read | 10-Storey building made in 28 hours and 45 minutes with pre-fabricated containers in China

At ISSADESIGN, the designers are hungry for challenges, creative solutions, and innovative technology. Their constant curiosity pushes the team to exceed the client’s expectations by creating unique spaces where aesthetics and functionality meet.